Building a landed home is a significant investment, and while personal preferences matter, it is also essential to consider the house’s resale value. The decisions you make during the design and construction process can directly impact the marketability and value of your property in the future. Whether you plan to live in the home long-term or sell it later, ensuring strong resale potential can protect your investment. Here are key factors that influence the resale value of landed properties in Singapore.
1. Location and Neighbourhood Appeal

Location plays a major role in determining your house’s resale value. Properties in prime districts or areas with strong neighbourhood appeal tend to attract more buyers and higher prices. Factors that influence desirability include:
- Proximity to amenities — Homes near reputable schools, shopping malls, hospitals, and recreational facilities are more attractive to families and professionals.
- Accessibility — Easy access to MRT stations, major roads, and public transport increases convenience and demand.
- Surrounding developments — Upcoming infrastructure projects, such as new expressways or business hubs, can boost the value of your home over time.
When choosing a plot for your landed home, consider these factors to ensure strong resale potential.
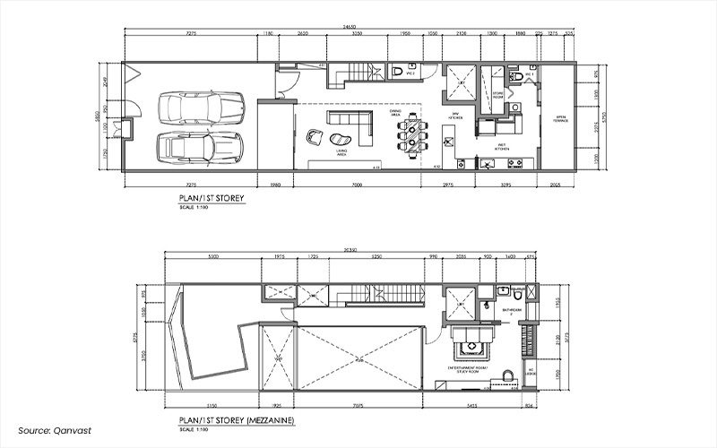
2. Home Size and Layout

Source: Qanvast
Your home’s size and layout can directly impact its functionality and attractiveness to future buyers. A well-planned layout that maximises space can make the home feel larger and more practical. Popular design choices include:
- Open-plan living areas — Modern buyers prefer layouts that offer flexibility and a seamless flow between spaces.
- Sufficient bedrooms and bathrooms — Homes with at least three to four bedrooms and multiple bathrooms appeal to larger families.
- Multipurpose spaces — Adding adaptable areas such as a study or entertainment room can make the home more appealing to different buyer needs.
A well-designed home size and layout can increase demand and enhance your house’s resale value. If you require a second opinion on how to optimise this, consider consulting with an experienced building contractor.
3. Quality of Materials and Finishes

Using quality materials in construction and interior finishes improves durability and elevates the property’s appeal. Buyers are willing to pay a premium for homes built with high-quality materials that require less maintenance. Consider:
- Flooring — Hardwood, marble, or high-quality tiles enhance aesthetic appeal and longevity.
- Countertops and cabinetry — Stone countertops and custom-built cabinetry add a luxurious feel to kitchens and bathrooms.
- Windows and doors — Double-glazed windows and solid doors improve insulation, soundproofing, and security.
Balancing luxury materials with overall marketability and value is important to avoid over-improving beyond the expected standards in your neighbourhood. For a smoother and more transparent collaboration, especially in terms of the materials you are using, opt for design-and-build services that streamline the number of people you need to liaise with.
4. Sustainability Features and Green Technology

Sustainable homes are becoming more attractive to buyers in Singapore. Adding sustainability features not only reduces environmental impact but also increases your house’s resale value by offering energy efficiency and cost savings. Consider integrating:
- Solar panels — Help reduce electricity bills whilst making the home eco-friendly.
- Rainwater harvesting — Provides an alternative water source for irrigation or general use.
- Energy-efficient lighting and appliances — LED lighting and smart home technology can improve efficiency and convenience.
Buyers who prioritise sustainability will find these features highly desirable, improving the home’s long-term marketability and value.
5. Maintenance and Upkeep

A well-maintained home retains its value over time. Regular upkeep ensures that the house remains in good condition, preventing issues that could lower its resale price. Consider the following:
- Preventative maintenance — Regular inspections and minor repairs prevent costly issues in the future.
- Exterior and landscaping upkeep — A well-maintained façade and outdoor area improve first impressions and increase appeal.
- Avoiding over-customisation — Extremely personalised features, such as unique room layouts or bold colour schemes, may limit your pool of potential buyers.
While enhancing your home, staying within the general expectations of the property market ensures better marketability and value.
When building a landed home, thinking about its resale value from the get-go can help guide your decision-making process on what your home needs, ensuring that your investment remains profitable. Choosing a location with strong neighbourhood appeal, designing an efficient layout, using quality materials, integrating sustainability features, and maintaining the property properly all contribute to a higher house resale value.
It is also important to build within your budget even while you are considering your home’s long-term value. Overspending on unnecessary luxury elements can limit returns, so finding the right balance is key.
Here at Colebuild, we specialise in design-and-build services, helping homeowners maximise the value of their landed homes whilst keeping to their budgets. Whether you need a building contractor for a new home or professional guidance for addition and alteration (A&A) works, our team is committed to helping you find the best solution.
For more information about our services, please contact us today.